
7 MONTHS INTO THE SEARCH FOR A BUILDER, COURTNEY & JORDAN ALMOST GAVE UP AND SOLD THEIR DREAM BLOCK. HERE’S WHAT CHANGED THEIR MIND.
Let’s rewind to February 2024.
Courtney and Jordan were living the early mornings, long workdays, and dog-parenting life. After seven years together, they’d recently tied the knot and were sharing their home (and hearts) with their adorable fur child, Vader. Tired of renting, they were more than ready to create a space that was truly their own. They were beyond ready to escape the rent trap and start fresh in a home that they could truly call theirs.
In the beginning they tried to buy an established home, but the property market was extremely tough. Think bidding wars, sky-high prices, and houses that just didn’t feel right. So instead of settling, they pivoted to building their dream home. Smart move.
The Land: Amazing!
...BUT ALSO A BIT OF A HEADACHE.
They found a beautiful big block with a unique shape. It had a 27m wide frontage, tapering to 13m at the back. A rare find! But also, tricky.

They wanted to take full advantage of that wide frontage and have a layout that worked with their land shape, not against it. The issue? Every salesperson they approached pushed the standard long, narrow designs that didn’t suit the block at all. When they tried to explain their vision, most sales consultants either didn’t understand, couldn’t be bothered to help or couldn’t nail the design.

And then came the pressure.
Consultants started pushing them to sign on “before the price goes up” warning them they were “running out of time” and making them feel like they were the problem. When in reality, they were just trying to get a design that worked for their block, their lifestyle, and their budget. Reasonable, right?
But after seven months of getting the runaround, they were exhausted and ready to sell the block. Not even joking. They were done.
That's Where I Stepped In...
I had just opened up a few spots for an exclusive collaboration with La Vida Homes. It’s where clients skip the usual messy sales process and get me on their team from day one right through to handover.
When Courtney reached out with this message:
“What is supposed to be the most exciting time of our lives has become a nightmare. We’re close to giving up. We’ve met with multiple builders who said all the right things, but no one can deliver what we actually want.”
… my heart broke for them. I just knew I had to help.
Even though my client list was full by then, I made space for them… because people like Courtney and Jordan deserve a better building experience. And I was determined to give them one.
I’m Jess — A Personal Building Advocate
With 16 years behind the scenes in the building industry, I know exactly how builders operate and I use that knowledge to your advantage. I’ve helped thousands of Aussies take control of their build, dodge the common mistakes and enjoy the process.
WANT TO KNOW MORE ABOUT THE EXLUSIVE HOME BUILDING EXPERIENCE?
LEARN MOREFIRST STEP: FREE CLARITY CALL AND BUILDER MATCH
We kicked things off with a free clarity call where I asked a million questions (Seriously. Don’t be surprised if I ask what side of the bed you sleep on). I wanted to get to the why behind their wish list and see if La Vida was the right builder for them. Spoiler alert: they were.
We got along straight away, which is super important because in this collaboration, we spend a lot of time together. I’m not just your plan checker. I’m your sounding board, hype girl, translator of builder lingo, and voice of reason when you're choosing between 14 shades of greige tiles.
The Wishlist
Their brief was specific, and I loved that:
- Drive-through trailer access
- Garage to laundry connection with a proper drop zone
- A scullery to hide the everyday mess
- Spacious open plan living area which connected to the outdoor entertaining area
- A dedicated theatre
- Generous bedrooms, especially a luxe master suite with a big WIR and stunning ensuite
- A farmhouse-style footprint to suit the block, but with a modern, contemporary vibe
Jordan, being the talented artist he is, came to me with a concept sketch where he’d carefully tried to combine all their ideas into one layout. It was so helpful and honestly, it’s still the best sketch I’ve ever been given by a client (most of the time I get a rough scribble on the back of a napkin!!).

It gave us a great starting point, but there were a few key things that needed tweaking to make the home more functional and cost-effective.
One of the biggest was the journey from the garage to the master bedroom. Imagine coming home after a long day, arms full of bags, and instead of a quick, easy path to your room, you’d have to walk through the laundry, past the scullery, into the kitchen, weave through the living area, down a long hallway and then finally get to the master suite. Which would be great if they were doing a steps challenge but not so great if they wanted to get home, kick their shoes off and relax.
There were also practical things missing, like garage storage (which I knew they’d 100% need) and a drop zone. There were also three big hallways that were chewing up space and driving up costs without adding much value.
Another big issue was the bedroom zoning. Bedroom 2 was completely separated from the others, so if someone was staying in that room and needed to use the bathroom, they’d have to walk right through the main living areas just to get to it. It wasn’t ideal for privacy or functionality.
So, I got to work refining the design and reworking the layout to improve flow, add practical storage, zone the bedrooms properly, and reduce wasted space. The goal? To give them a design that felt effortless to live in and made better use of their budget, without compromising on any of the beautiful features they’d dreamed of.
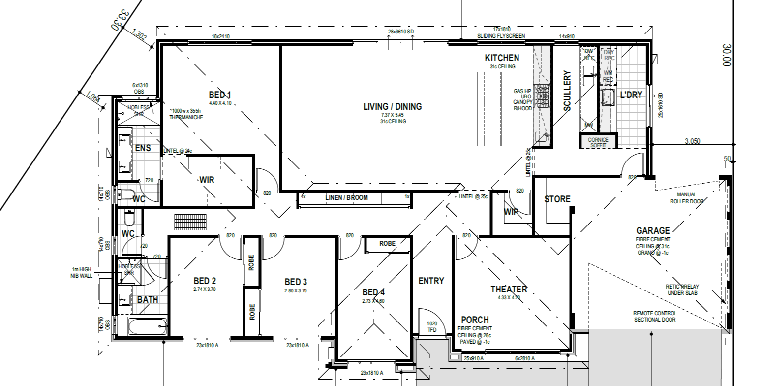
The Concept Plan
Once I had a solid understanding of their wish list, I got to work sketching up their concept plan. The block shape made it challenging (and honestly, I totally get why so many builders gave them the run around) but I was up for it.
Here’s what I carefully considered and added to Courtney and Jordan’s plans to make it work harder for them:
- We shifted the garage onto the boundary instead of leaving it 3 metres off. That smart move freed up more space on the left-hand side of the block, which gave us extra room to zone the bedrooms better.
- We made the garage a drive-through, adding a roller door at the back for easy access to the yard, and tucked in some storage while we were at it. We also added a door from the garage directly opposite the laundry so Jordan can quickly wash up after work before stepping inside.
- We made them walk past a drop zone to get into the house. Which was completely on purpose! That way, the everyday clutter stays hidden down that side of the home (literally hidden, because they’re planning to install a secret door of sorts having seamless cabinetry on that hallway later – love that).
- We tightened up the walkways and thoroughfares, so every square metre was used well. No wasted space.
- We zoned the bedrooms keeping the minor bedrooms grouped together and giving the master bedroom pride of place, overlooking their (now huge!) backyard.
- We went all out in the master with a king-sized room, a big walk-in robe and a luxe ensuite that Courtney has obsessed over. It’s going to be a stunner!
- And the cherry on top? We maximised the width of the house on the block, so they now have a 14.4m long backyard. That’s a lot of play space for Vader to do zoomies in and for Jordan to finally get his dream shed/workshop!


A few days later, we jumped on another call where I walked them through the whole concept plan- room by room, offering optional layout tweaks. They LOVED it. We fine-tuned a few little things together, then sent it off to La Vida Homes for drafting and pricing.
Courtney later said:
“Jess was able to work her magic and refine the design to create a masterpiece that maximises every inch of space, leaving no room for wastage. Absolutely in love with the layout of our home.”
Just 40 days and two plan revisions later, they signed their preliminary agreement.
And 15 days after that? Formal Building Contracts were signed which is a record-fast turnaround that helped them claw back time they’d lost with other builders.
But Then... The Sloped Block Drama
After the site survey was done, we discovered the front of their block had more slope than the developer’s documents had let on. Not ideal, especially when their local council had extremely strict rules around garage and driveway gradients.
So… cue panic? Not on my watch.
After everything they'd already been through with other builders blowing their budgets, they were understandably on edge. It felt like their dream home was about to fall apart… again. But I reminded them that I was in their corner, and that we’d find a solution they were happy with.
Because let’s be honest, building is a manmade product. Miscommunications between developers and builders can happen. But what really counts is how those hiccups are handled.
That’s where La Vida and I stepped up. The Design Manager and I rolled up our sleeves and workshopped every possible option until we landed on one that ticked every single box:
- Practical
- Affordable
- Council-compliant
- Still delivered all the design features they’d fallen in love with
Crisis averted.

Prestart Time
With plans locked in and finance on the way, it was time to prepare for prestart. We jumped on a call to go over electrical plan and cabinetry before the prestart appointment, so nothing important got missed when their brains turned to mush by hour three (trust me, it happens to everyone).
They had a solid wishlist (hello champagne taste), and Courtney said it best:
“We may have gone a tad overboard with our wish list, making sure to have backup options in case our first choices are too pricey.”
But just as they started making decisions on their upgrades, life threw them a curveball. It was a tough time, and they needed some time and space to pause.
To ease the load, I asked La Vida to run everything through me so Courtney and Jordan could take a step back. We quietly kept things moving in the background, making sure they could focus on themselves without the stress of feeling like they were falling behind.
And when they were ready, we picked things back up at full speed.

The Finer Details
After prestart, their finance broker worked behind the scenes to get formal approval. Reworking a few things to suit the final budget. I stayed in touch with the broker regularly to make sure things kept moving.
Once finance came through, it was go time. Plans were finalised, documentation was updated, and the house moved into scheduling. It’s where all the materials were calculated and pre-ordered (one of the secret weapons to a fast build).
The Timeline
Here’s a quick snapshot of their journey so far! From the very first free clarity call on 10 September 2024 to brick delivery on 31 July 2025, we’re looking at about 10 months in total.
Here’s how it all played out:
• 10 September 2024 – Free Clarity Call
• 20 October 2024 – Signed Preliminary Agreement
• 4 November 2024 – Building Contracts Signed
• 31 January 2025 – Prestart Meeting*
• 27 May 2025 – Ready for Construction
• 4 June 2025 – Scheduling Complete (materials preordered for a speedy build)
• 24 June 2025 – Siteworks Commenced
• 10 July 2025 – Slab Down
• 31 July 2025 – Brick Delivery
*There was a bit of a pause, of a few months, between the prestart meeting and when the build actually kicked off. This was because Courtney and Jordan were dealing with some personal stuff that naturally slowed things down for a bit. But once everything was ready to roll, La Vida Homes went full speed ahead.
On 29 July 2025, Courtney and Jordan met up with their Site Manager to spray paint their slab and they got to spray whatever they liked! It was their chance to leave a personal, creative mark on their dream home before the walls went up. La Vida loves getting clients involved in moments like this. Next up? They’ll be learning how to lay a brick with the bricklayer themselves. Building memories (and walls!) one fun step at a time!


Brickwork loading...
In just 5 weeks and 2 days since siteworks started, the bricks are already onsite, ready for the bricklayer to get started on the walls – WHOO HOO!!
Stay Tuned...
We’ll be keeping you in the loop every step of the way as Courtney and Jordan’s dream home comes to life onsite. From big milestones to those little moments that make building so rewarding, you’ll hear it all as it happens. Stay tuned, this build is just getting started, and there’s so much more to come!
If you want to follow along with the rest of their building journey, head over to their Instagram page @_ourcoastalhaven, where Courtney and Jordan post regular updates and share all the behind-the-scenes magic!
Here's What They Had to Say...
"From Chaos to Clarity. What was meant to be one of the most exciting times in our lives—building our first home—quickly turned into months of stress, disappointment, and dead ends. We met with builder after builder who all promised the world, but none could bring our vision to life without blowing the budget. It got to the point where we were ready to walk away and sell the block.
That was until I entered The Home Chaperone x La Vida Homes collaboration and met Jess.
From the very first phone consult with Jess, it just felt different. Jess brought a sense of calm and clarity to our chaos. She listened, truly listened, to what we wanted from our home—not just in the layout, but in how we lived and planned on living in our new home.
Jess asked the right questions, gave thoughtful advice, and helped us rethink every space so it worked smarter for us. Nothing was cookie-cutter. Nothing felt rushed. For the first time in the build process, it honestly felt like someone was 100% in our corner.
The whole process has felt like a breath of fresh air. 100% would recommend! So if you’re building, renovating, or just unsure about your design, do it—you will not regret working with Jess."
WANT ME IN YOUR CORNER?
If you're building your first home (or even your fifth), and you’re sick of:
- Being overwhelmed by options
- Salespeople who say “yes” to everything but deliver nothing
- Designs that don’t suit your block or lifestyle
- Feeling like no one is actually listening to what you want
Then reach out to see if there are any spots in the La Vida Homes Collaboration.
You’ll get:
- A truly personalised home design
- Honest pricing and real talk from day one
- Builder advice you can trust
- Me (Jess!) with you the whole way, answering questions, reviewing plans, calming your nervous system at prestart, and celebrating your wins.
WANT TO KNOW MORE ABOUT THE EXLUSIVE HOME BUILDING EXPERIENCE?
Click the link below or fill in the form to book a free clarity call.
Book a Free Clarity Call
I only work with a handful of clients each year so I have the time to deliver top-notch service. No rushing, no cookie-cutter advice. Drop your details below and I’ll give you a call to see if we’re a good fit. No pressure, just a quick chat to figure out what you need and how I can help.